Skip to main content
Agat+ Factory of Windows and Doors

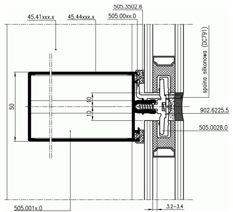
FA 50 facade, SL variant – section through the facade mullion

FA 50 facade, SL variant – section through the façade transom